The Saxham - End Terrace - Hopkins Homes at Abbots Vale
Home 198, The Saxham
The Saxham presents a spacious three bedroom home with a carport and dedicated parking.
Price TBC
Step into The Saxham, a stylish three-bedroom home designed for families and first-time buyers alike. Boasting over 1,200ft2 with flexible living spaces, modern finishes, and smart features as standard, this home makes everyday life effortless.
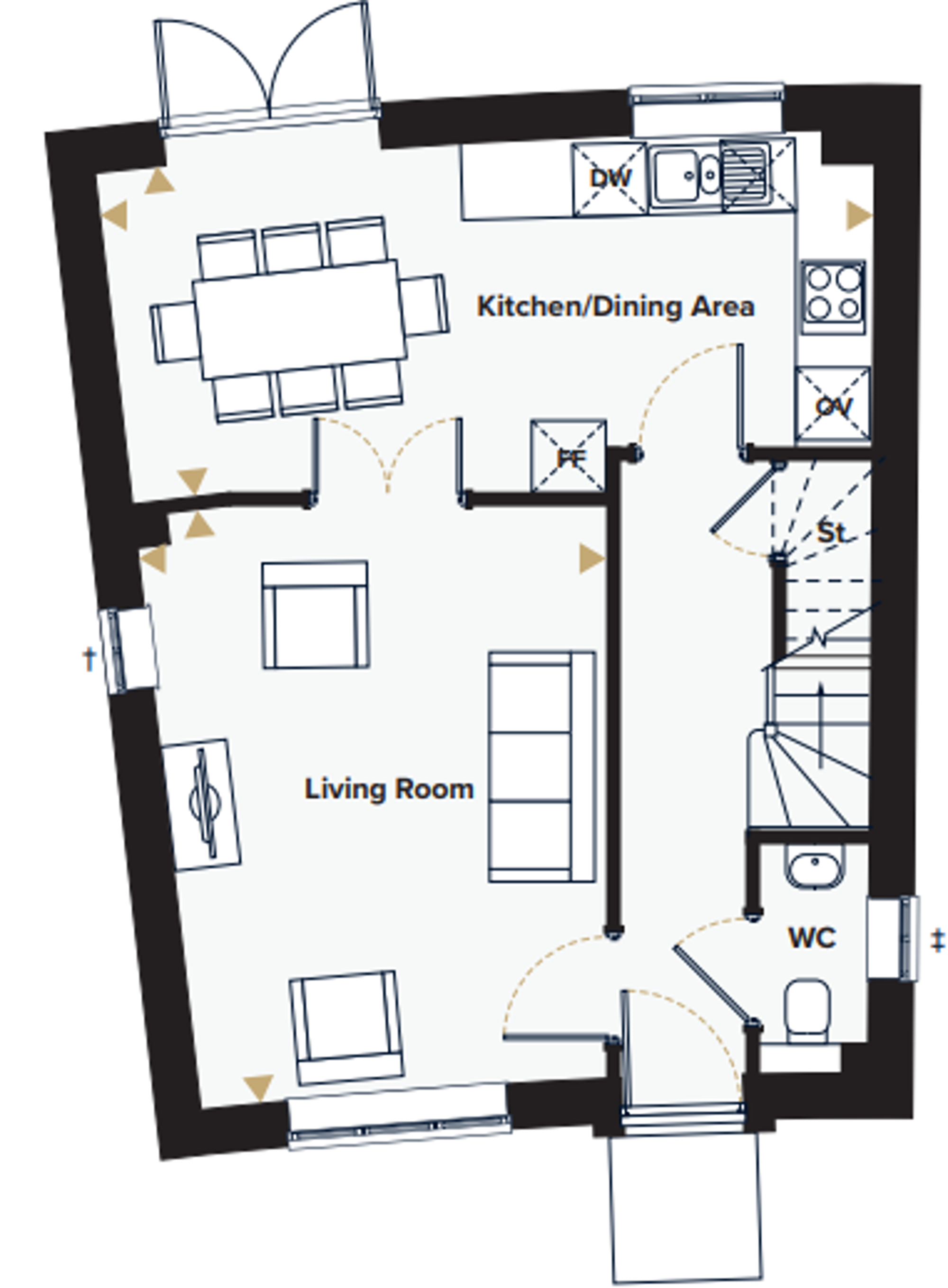
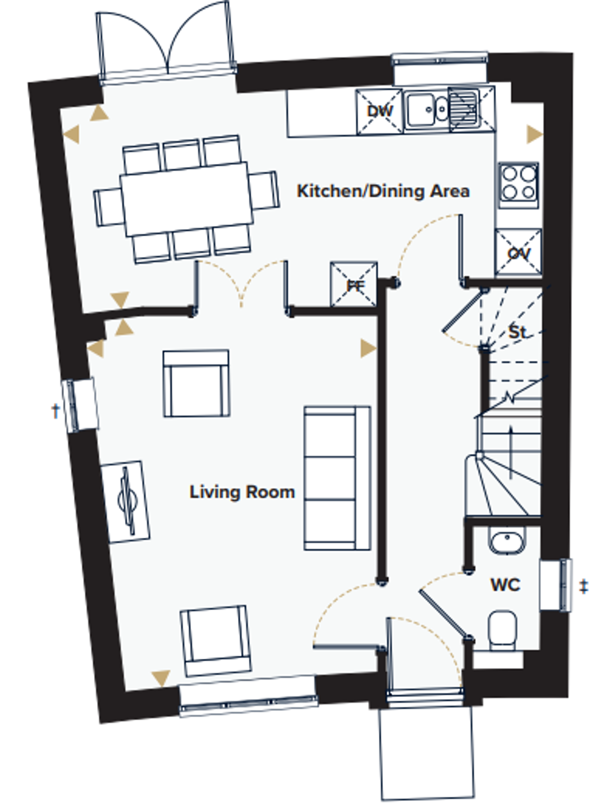
The open-plan kitchen and dining area flows seamlessly into the private garden, perfect for weekend BBQs, family meals, or quiet mornings with a coffee. A separate living room provides a cosy retreat for relaxation or movie nights.
Upstairs, the principal bedroom occupies the top floor with en-suite, while the second bedroom also enjoys its own en-suite and fitted wardrobe. A third bedroom, served by a family bathroom, offers versatility for children, guests, or a home office.
All homes at Abbots Vale feature integrated appliances, flooring in kitchen and hallways, and air source heat pumps as standard, combining style, comfort, and energy efficiency from day one.
Situated in a welcoming community with green spaces, excellent local amenities, and easy access to Bury St Edmunds, The Saxham is more than a house, it’s a home ready to grow with you.
What makes The Saxham - End Terrace feel like home
3 Bedrooms
Three double bedrooms with two options for the main bedroom
1 Bathroom & 2 En Suites
End Terrace
EV Charger & Parking
Larger than average 3 bed home at 1,225ft2
10 Year New Home Warranty
Heating via air source heat pump
Underfloor heating to the ground floor
Integrated appliances included as standard
This home is ready to move into now.
This home includes flooring throughout and turf to the rear garden.
FLOORPLANS
The Saxham - End Terrace layout, beautifully considered
- For Sale
- Coming Soon
- Sold
- Show Home
198
Floor plans and dimensions can only be given as a guide and are indicative of the House Type only. These are liable to change as build progresses; please speak to the Sales Consultant for plot specific information. The computer generated images, floor plans, configurations and layouts are included for guidance only. Photos are indicative only of previous Hopkins Homes properties. External finishes, landscaping and levels will vary, please refer to drawings in sales office. Trees on site layout are unlikely to represent actual volume, type or scale. Development layout not to scale, for indication only.
Ways to Buy
You're closer to home than you think
Buying a home is an exciting step - but it can also feel a little daunting. Whether you're moving up the ladder, downsizing, or buying for the first time, there are plenty of ways to make your move easier and more affordable.
TrustPilot