The Elsenham - Hopkins Homes at Beaulieu, Chelmsford
Home 95
The Elsenham is a four-bedroom link-attached home with two parking spaces
£ 620,000
The Elsenham is a four-bedroom link-attached home, with a layout that's worth understanding.
The whole ground floor is designed around the idea that cooking and eating and getting outside are what ground floors are actually for. At the rear is a kitchen/dining room, a near-square room with French doors opening onto the rear garden. A separate room at the front of the house is a flexible space that works well as a snug, dedicated dining room or home office.
The living room sits on the first floor. That's not a compromise, it's a deliberate decision that gives the living room a quieter position away from the kitchen and a clear separation from the activity of the ground floor. Also on the first floor is the Master bedroom and bedroom four which is the right proportions for a study, dressing room or single bedroom depending on what you need from it.
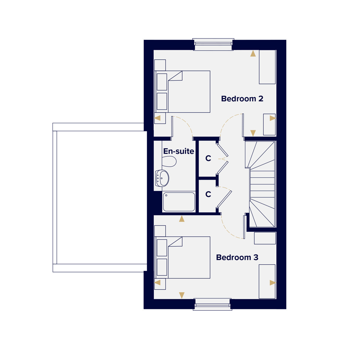
The top floor has two double bedrooms one with an en suite. Which of the bedrooms you treat as the master bedroom, and which floor you put it on, is genuinely your decision.The Elsenham works either way, it's a home that adapts to how you want to live in it rather than telling you how that should be.
The home is heated via air source heat pump with underfloor heating to the ground floor and thermostatically controlled radiators above. Full flooring is included throughout along with two parking spaces
What makes The Elsenham feel like home
4 bedrooms
Three well-proportioned doubles and a fourth ideal as a nursery, study or guest room.
2 bathrooms
A family bathroom and an ensuite to the master bedroom, giving everyone space when it matters most.
High specification kitchen with integrated appliances
A beautifully finished kitchen featuring high-quality fittings and integrated appliances for stylish, modern living.
Flooring included throughout
Move straight in without the time, disruption or cost of fitting it yourself.
Bonus ground floor room
Ideal as a dining room, snug, study or play room
Fitted sliding wardrobe
For a stylish and convenient storage solution.
10 Year new homes warranty
Every Hopkins home carries a 10-year new homes warranty. Because building better means standing behind every brick we lay.
Separate first floor living room
Two parking spaces with EV Charger
An EV charging point provides convenient at-home charging, supporting more sustainable living.
FLOORPLANS
The Elsenham layout, beautifully considered
- For Sale
- Coming Soon
- Sold
- Show Home
95
Floor plans and dimensions can only be given as a guide and are indicative of the House Type only. These are liable to change as build progresses; please speak to the Sales Consultant for plot specific information. The computer generated images, floor plans, configurations and layouts are included for guidance only. Photos are indicative only of previous Hopkins Homes properties. External finishes, landscaping and levels will vary, please refer to drawings in sales office. Trees on site layout are unlikely to represent actual volume, type or scale. Development layout not to scale, for indication only.
Ways to Buy
You're closer to home than you think
Buying a home is an exciting step - but it can also feel a little daunting. Whether you're moving up the ladder, downsizing, or buying for the first time, there are plenty of ways to make your move easier and more affordable.
TrustPilot